0%
 
Construction drawings

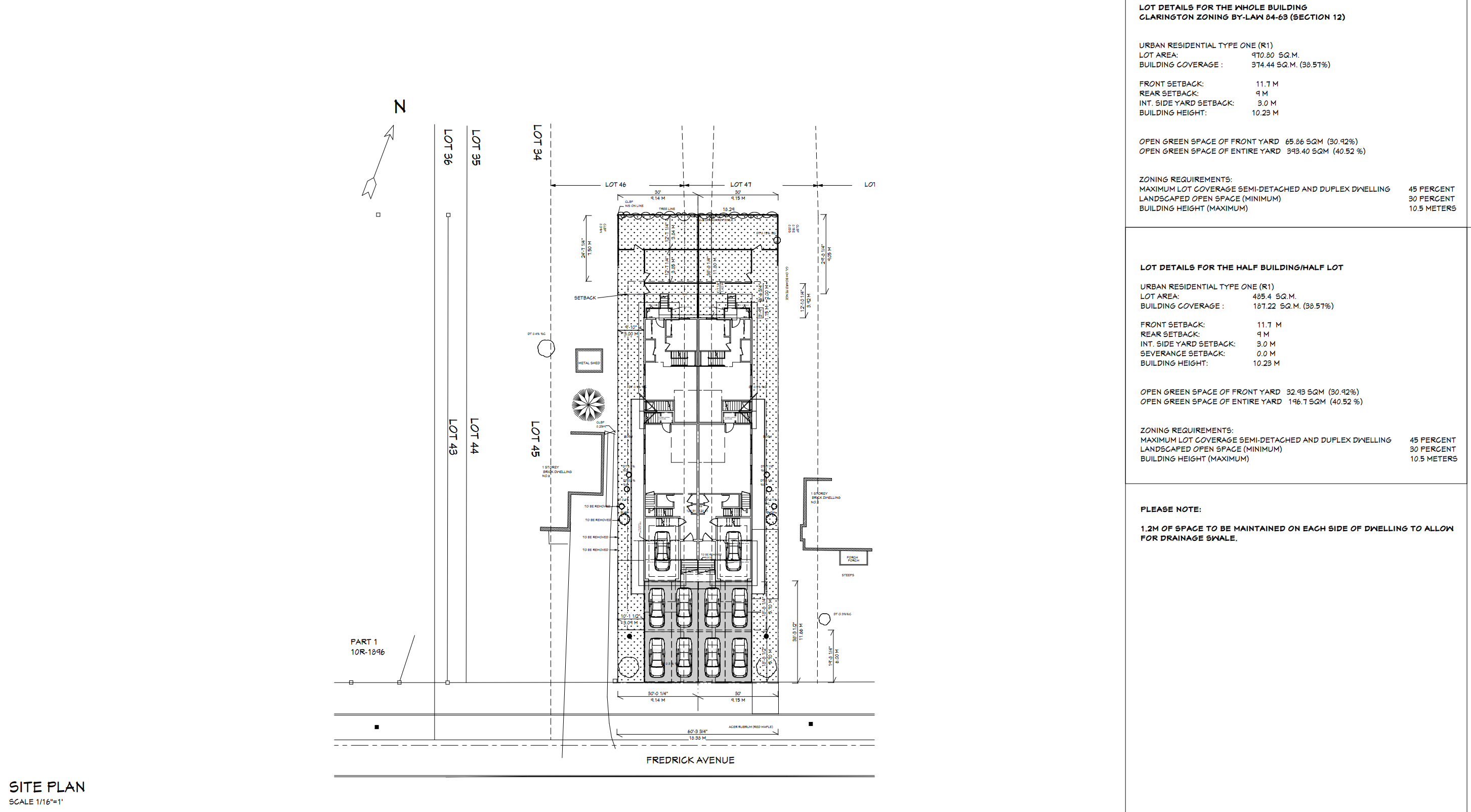
Project Details

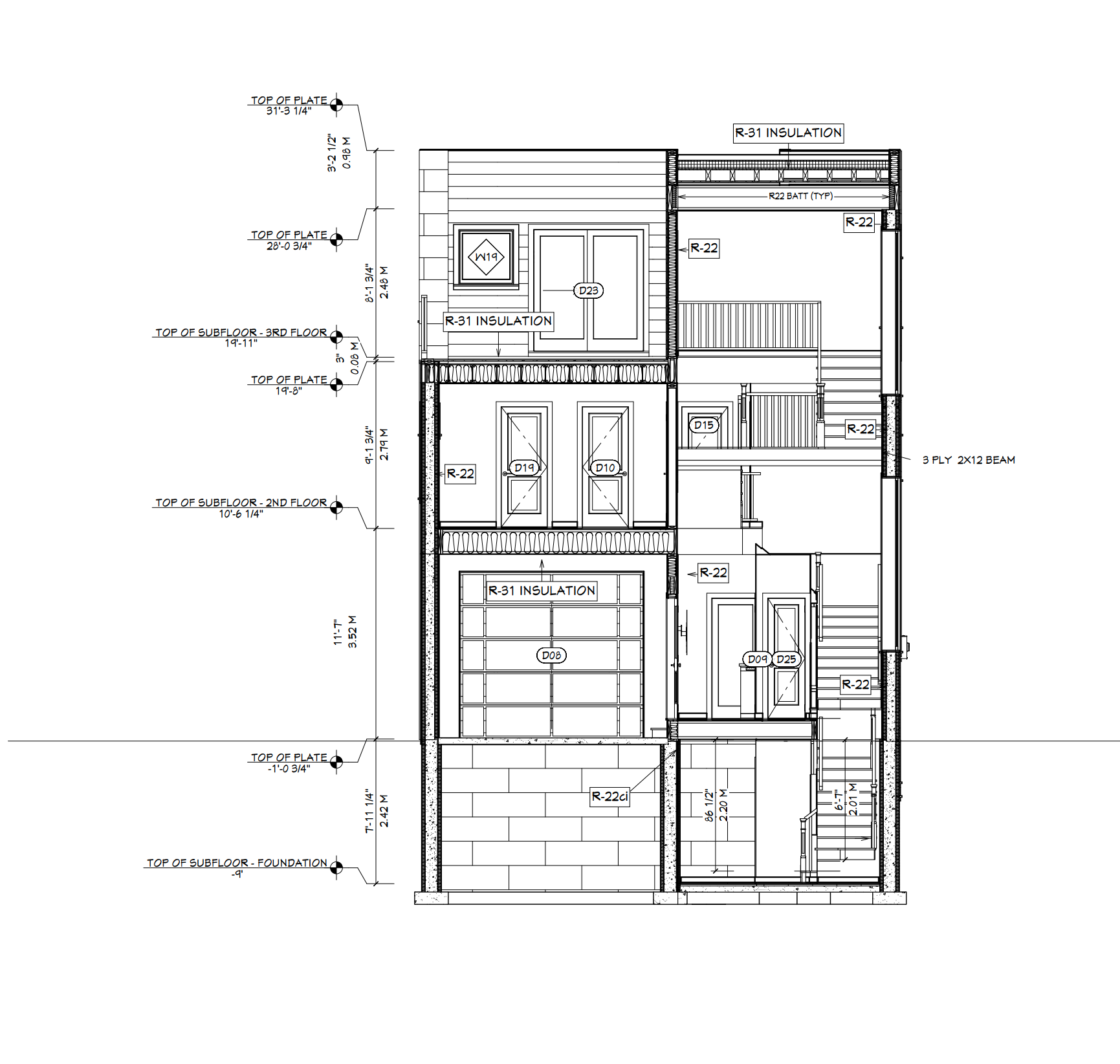
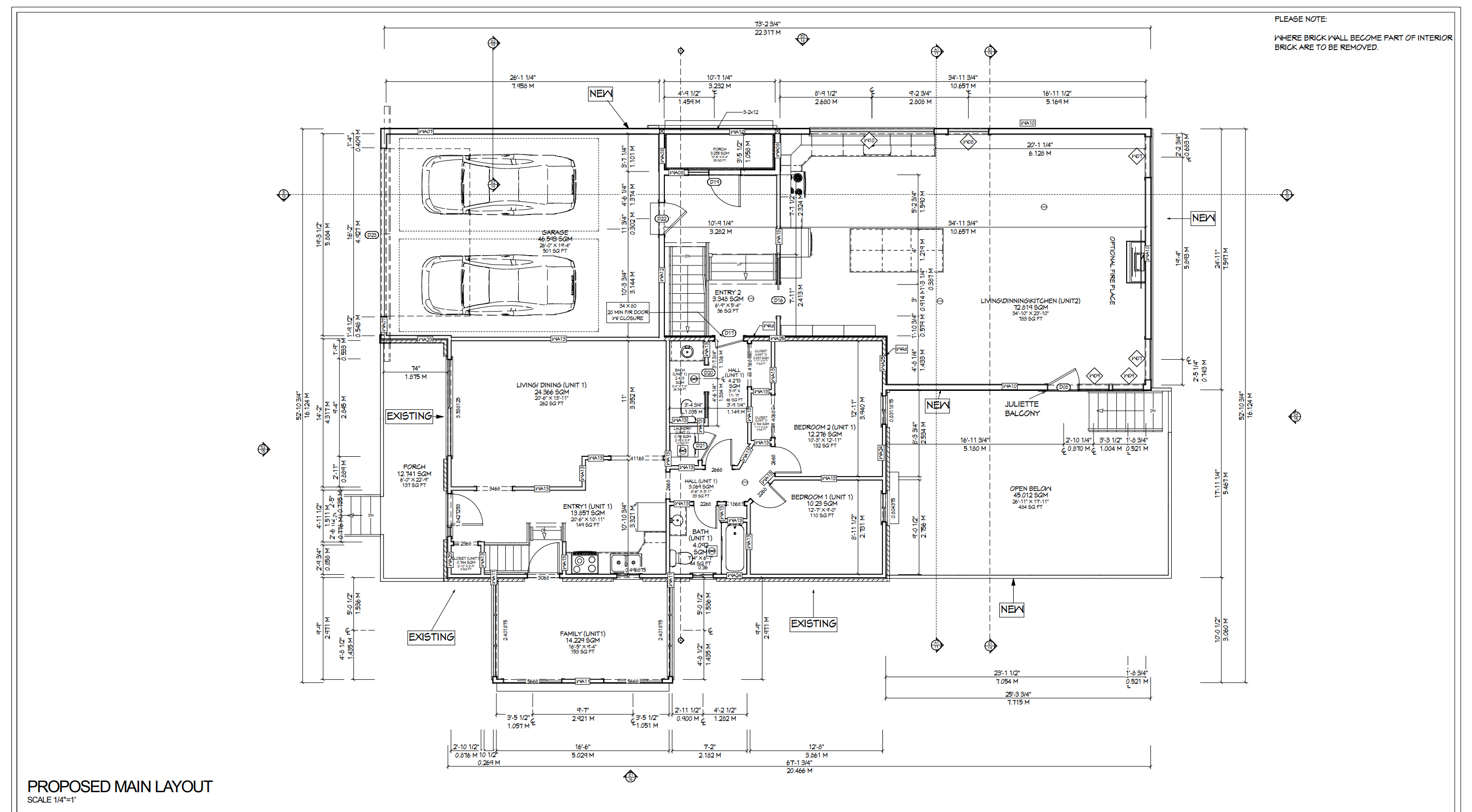
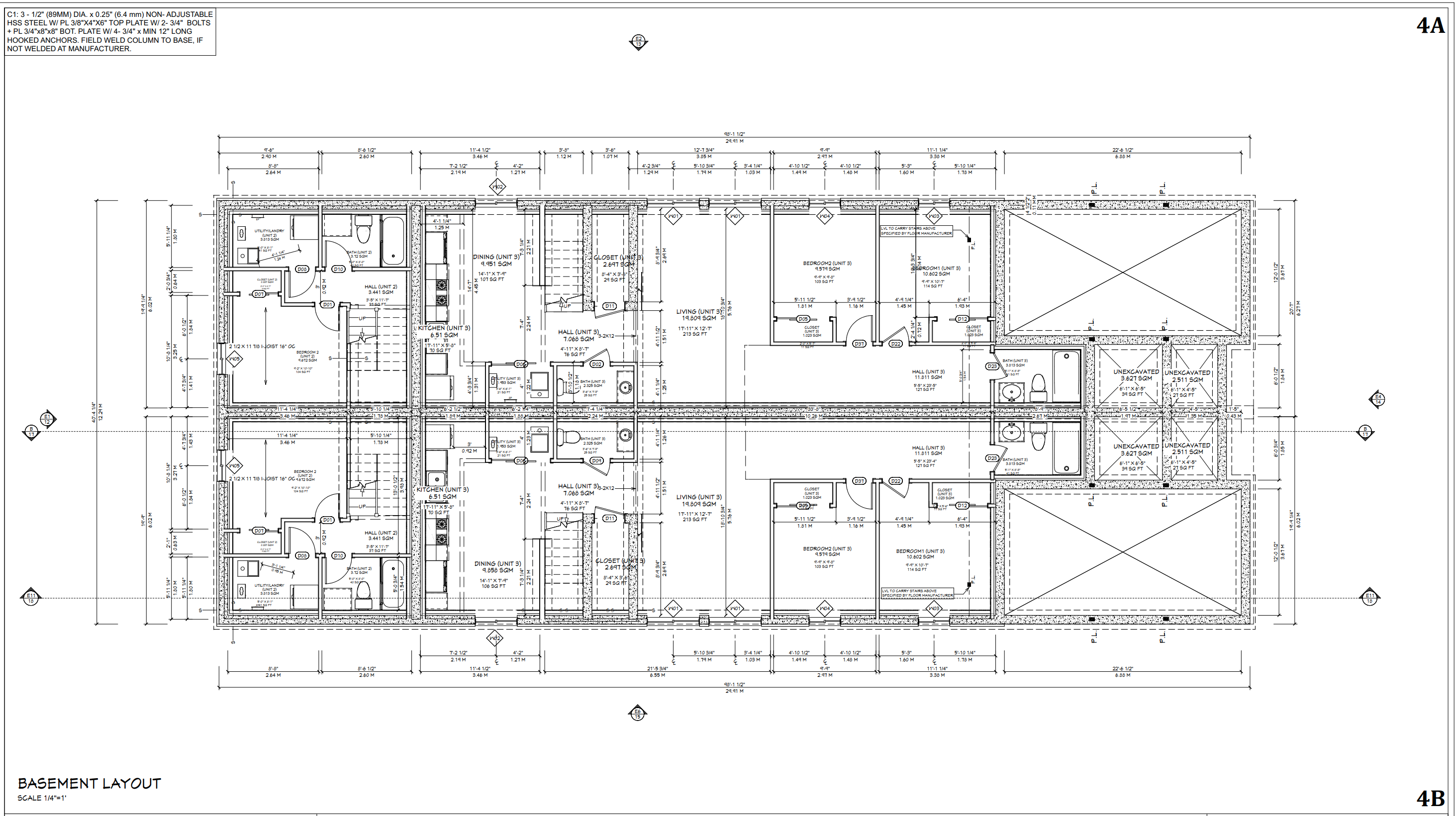
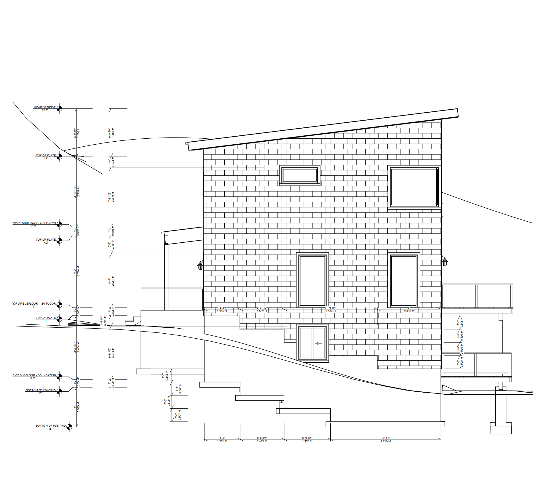
This section showcases a diverse array of Construction drawings crafted during my tenure in Hom drafting and design.

Other Project
 
Back To Top