0%
Contact
Artwork
Interiors
Architecture
CV
About
LAURETTA
Project Details
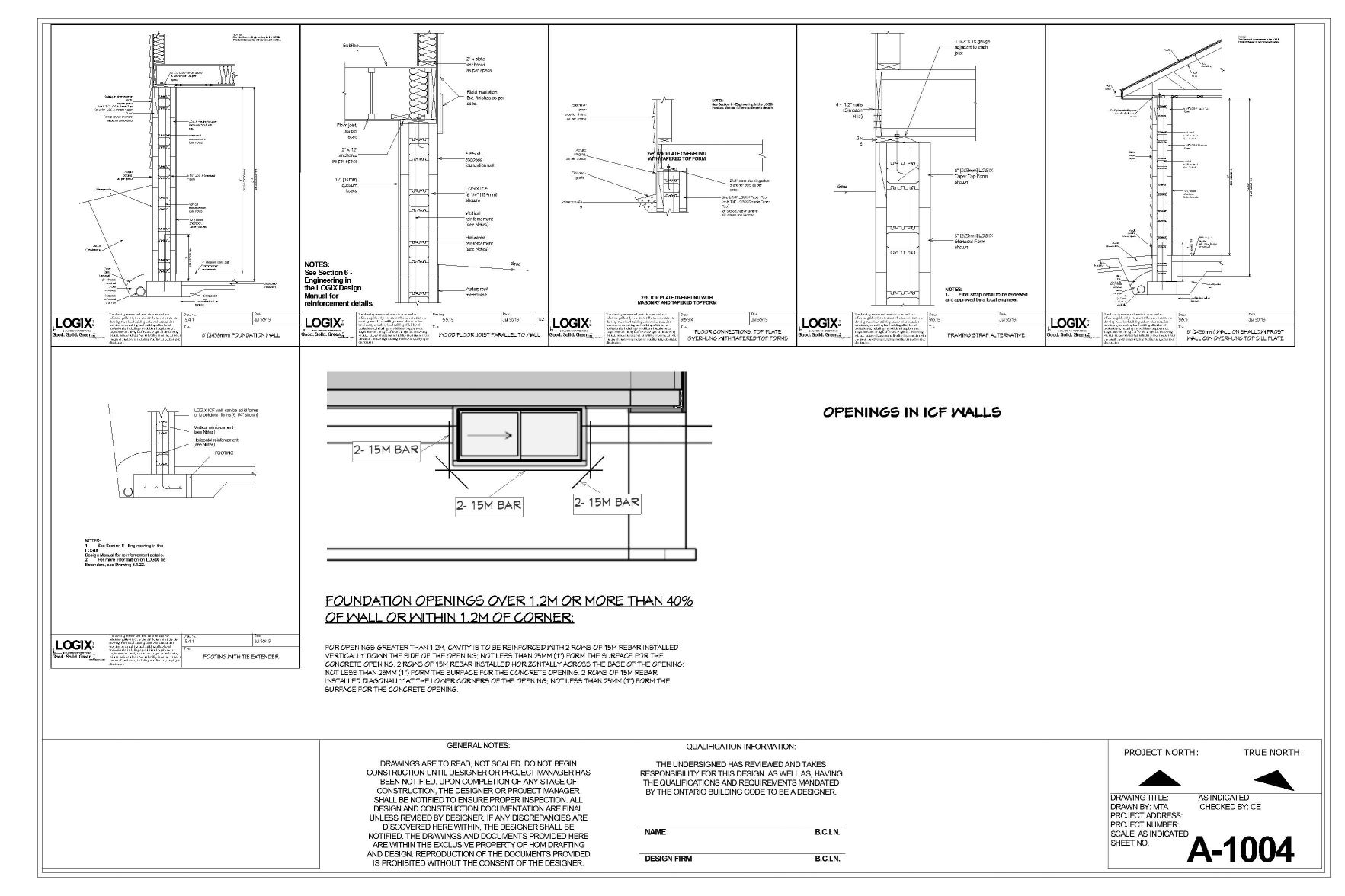
THIS PROJECT DESIGN IS BEING CREATED DURING MY TENURE AT HOM DRAFTING AND DESIGN.
Other Project
OASIS